Stand 26 April Bouw nieuwe Clubhuis Maasland:
Geachte leden
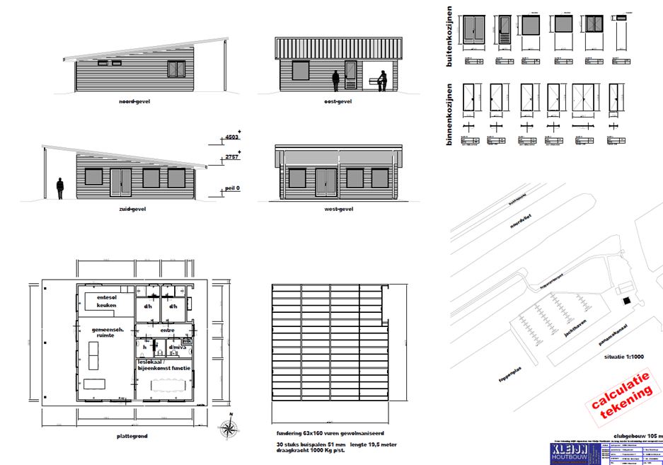
Op dit moment is het ontwerp van Fa Kleijn, de beoogde aannemer voor de bouw, bij de gemeente in het zgn. OLO (Omgevingsloket) ingediend. Van hieruit wordt een toets gedaan of dit ontwerp in het bestemmingsplan past en of afdeling Welstand ermee kan leven. Vanuit de gemeente hebben wij inmiddels gehoord dat het past in het bestemmingsplan en is wachten op Welstand. Als ook deze akkoord is kan de officie vergunningaanvraag ingediend worden met bijhorende stukken dit zijn:
Als dit pakket is ingediend hebben belanghebbenden 6 weken om bezwaar te maken, dit is niet de verwachting omdat dit bij het eerste ontwerp, waar vergunning voor is, niet is gedaan. Wij denken dat de vergunningaanvraag over een wek of 4 kan en dan de teller van 6 weken gaat lopen. Als dus alles gaat zo wij hopen is de vergunning er eind juni medio juli. De aannemer kan dan starten en heeft een bouwtijd van ongeveer 3 maanden. Voor komende winter staat er dan een clubhuis wat de vereniging zelf af moet maken. De werkzaamheden die wij zelf nog moeten doen zijn o.a.
Kortom er zit schot in alles, voor de afbouw zoekt de HRC vrijwilligers om het nog mooier te maken dan de aannemer oplevert, meldt u dus aan.
Op naar een mooi clubhuis
Klik hier voor de tekening in hogere resolutie
